Seite wählen

Wohnglück mit Weitblick

Freistehendes Einfamilienhaus  in bester Randlage von Krefeld-Oppum

KAUFPREIS: 524.000 €

  • Lage: 47809 Krefeld-Oppum
  • Objektart: freistehendes Einfamilienhaus
  • Wohnfläche: ca. 103
  • Grundstück: ca. 846
  • Ausrichtung: Südausrichtung
  • Stellplätze: 1 Garage mit Nebenraum und vorgelagertem Stellplatz

  • Anzahl Zimmer: 3-4
  • Bauweise: massiv
  • Heizungsart: Zentralheizung
  • Wesentliche Energieträger: Öl
  • Energieausweis: Bedarfsausweis
  • Energiebedarf: 261,4 (m²*a)
  • Energieeffizienzklasse: H
  • Baujahr: 1966
  • Baujahr Kessel 1997, Brenner 2021
  • Käuferprovision: 2,975 % inkl. z.Zt. 19 % MwSt.

Für Ihre Rückfragen stehe ich Ihnen gerne zur Verfügung.

Kontakt:
Tel. 0203 357275

per Mail

Susanne Hempel

Dipl.-Ing. Architektin, Immobilien Hempel

Dieses in großen Teilen sanierte Einfamilienhaus punktet durch die Möglichkeit des sofortigen Einzuges ohne aufwendige Renovierungsarbeiten. Das Haus verfügt über eine kompakte und durchdachte Raumaufteilung mit Ausbaureserve im Spitzboden. Das Objekt befindet in einer reinen Wohnsiedlung, welche in den 60er Jahren städtebaulich sehr großzügig angelegt wurde. Der weite, unverbaubare Gartenblick verleiht dem Anwesen das ganz besondere Etwas. In der massiv erbauten Garage befindet sich ein PKW-Stellplatz, ein separater Nebenraum dient als Hauswirtschaftsraum und Waschküche. Die Garagenauffahrt ist groß genug, um ein weiteres Fahrzeug abzustellen.

Derzeit ist der Grundriss mit 103 Quadratmetern Wohnfläche auf die Bedürfnisse eines Paares oder einer kleinen Familie abgestimmt. Ausbaupotenzial bietet nach vorheriger Absprache mit dem Bauamt der Spitzboden. Der Einbau einer Raumspartreppe ist an mehreren Stellen möglich.

Der sehr gepflegte Garten in Südausrichtung schafft ein hohes Maß an Erholung. Mit einem atemberaubenden unverbaubaren Weitblick orientiert er sich zu einer weitläufigen Landschaft, die von Feldern und Wäldern geprägt ist. Ein solide errichtetes Gewächshaus sorgt für die Möglichkeit, ganzjährig Obst und Gemüse anzubauen oder Pflanzen zu überwintern. Durch einen rückwärtigen Gartenzugang gelangt man direkt zu den angrenzenden Feldwegen, die zu täglichen Spaziergängen einladen.

Das Haus wurde in solider Massivbauweise errichtet und wurde im Jahr 2023 teilsaniert:

– komplett erneuerte Elektrik
– neue Wasser-/ Abwasserleitungen
– modernes Tageslichtbad
– erneuertes Gäste-WC
– glatt verspachtelte Innenwände
– moderne Innentüren
– Treppenaufgang mit Treppenbeleuchtung
– Feinsteinzeugböden im Erdgeschoss, Vinylböden im Obergeschoss
– Klimaanlage
– Elektrik für PV-Anlage vorbereitet
– neuer Fassadenanstrich

Weitere Ausstattungsmerkmale:

– Fenster aus 1997 mit überwiegend elektrische Rollläden
– Heizkessel aus 1997, Brenner aus 2021
– Warmwasseraufbereitung elektrisch
– stabil errichtetes Gewächshaus
– Garage mit großem Nebenraum

 

AUFTEILUNG:

Das Erdgeschoss ist großzügig und offen gestaltet und bietet:

– Eingangsbereich mit Schuhwandschrank
– Diele mit kleinem Sitzplatz
– Gäste-WC
– offene Küche mit Essplatz
– geräumigen Wohn- und Essbereich mit Aussicht

Das Obergeschoss umfasst folgende Räume:

– großes Elternschlafzimmer – mit Ausblick in die Natur
– Kinderzimmer
– offenes Gäste- oder Arbeitszimmer, abtrennbar
– Tageslichtbad mit Wanne und Dusche

Der Spitzboden* wurde in den 70er Jahren:
– mit einer Holzvertäfelung und mit drei Dachflächenfenstern versehen
– durch eine Einschubtreppe zugänglich gemacht

*dieser Bereich ist nicht Teil der ausgewiesenen Wohnfläche

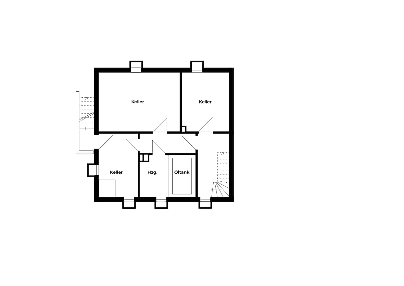
Der Keller verfügt über:
– drei Kellerräume
– einen Heizungsraum
– einen Bereich zur Heizöllagerung

In einer gewachsenen und ausgesprochen ruhigen Wohnsiedlung befindet sich dieses klassische Einfamilienhaus unmittelbar an einer weitläufigen Naturlandschaft gelegen. Der freie Blick in den großen Garten und die unbebaute Landschaft zeichnen die Mikrolage im besonderen Maße aus. Der Stadtteil Krefeld-Oppum bietet zudem ein gediegenes Lebensumfeld und ist sowohl bei Familien mit Kindern als auch bei Menschen mit Liebe zur Natur gefragt.

Zahlreiche Sport- und Freizeitangebote wie ein Golfclub, Tennis- und Sportvereine, ein Fitnessclub und das Naturschutzgebiet Latumer Bruch sorgen für Zeitvertreib und hohe Lebensqualität bei Freizeitaktivitäten. Mehrere Schulen und Kindergärten, exzellente Einkaufsmöglichkeiten und eine hervorragende Verkehrsanbindung durch die Autobahnen A57 und A44 schaffen eine vorzeigbare Infrastruktur.

Die Krefelder Innenstadt ist mit dem Auto in ca. 10 Minuten erreicht, Busverbindungen, der Bahnhof Oppum und ein Park & Ride-Parkplatz bieten komfortable Verkehrsverbindungen.

Der guten Ordnung halber sei erwähnt, dass alle Informationen in diesem Exposé auf Angaben beruhen, die wir vom Eigentümer erhalten haben. Für die Richtigkeit und Vollständigkeit übernehmen wir deshalb keine Gewähr, eine Haftung wird somit ausgeschlossen. Die Grundrisse stimmen nicht immer mit der aktuellen Raumaufteilung überein und sind in dieser Offerte unmaßstäblich dargestellt, sie dienen Ihrer Orientierung und sind in Teilen vereinfacht und schematisch dargestellt. Für Flächenangaben übernehmen wir keine Gewähr. Das Angebot ist freibleibend, ein Zwischenverkauf bleibt vorbehalten.

Die Provisionen richten sich nach den gesetzlichen Regelungen zur Teilung der Maklercourtage. Hiernach wird die Courtage für beide Parteien (Verkäufer und Käufer) in Höhe von jeweils 2,975 % inkl. z. Zt. 19 % Mehrwertsteuer verdient und fällig. Die Höhe der Mehrwertsteuer unterliegt einer Anpassung bei Steuersatzänderung. Die Provisionen errechnen sich jeweils vom beurkundeten Kaufpreis und werden erhoben und fällig bei Unterzeichnung des notariellen Kaufvertrages. Grunderwerbsteuer, Notar- und Gerichtskosten trägt der Käufer.

Sie sehen gerade einen Platzhalterinhalt von Google Maps. Um auf den eigentlichen Inhalt zuzugreifen, klicken Sie auf die Schaltfläche unten. Bitte beachten Sie, dass dabei Daten an Drittanbieter weitergegeben werden. Mehr Informationen